高級感溢れる大空間LDK

27.5畳の大空間が広がる、上質なLDK。
アクセントにはエコカラットを採用し、
調湿・脱臭などの機能性はもちろん、
空間のデザイン性も高めています。
さらに折り上げ天井に間接照明を取り入れることで、
やわらかな光が広がり、高級感のある雰囲気を演出。
室内の配色はグレー・木目・ブラックで統一し、
落ち着いた色合いにまとめることで、
重厚感のある上質な空間に仕上げました。


フラットで広々としたキッチンは、開放感あふれる空間。
ダイニングテーブルもキッチンと
横並びに配置されているため、
料理をしながら家族と自然に会話を楽しむことができ、
家族の時間がより身近に感じられます。
視界が広がるフラットな設計は、
リビングまでのつながりも意識されています。
機能性だけでなく、
暮らしの中心としての居心地や使い勝手も考えられた、
キッチン空間です。

ゆとりのある独立洗面台は、
椅子を置くこともできる広さを確保。
椅子に座りながらゆっくりと
スキンケアやメイクを行うことができ、
忙しい朝の身支度も快適に行えます。
使い勝手の良さだけでなく、
毎日の身支度の時間を心地よく過ごせる
ゆとりある洗面空間になっています。


脱衣室はランドリールームを兼ねた、
ゆとりある家事スペース。
室内にはカウンターと物干しパイプを設けており、
洗濯・干す・たたむまでの一連の作業を一か所で
スムーズに行うことができます。
天候や時間帯を気にせず室内干しができるため、
忙しい日々の暮らしの中でも効率よく
洗濯家事をこなすことが可能です。
また、カウンターは洗濯物をたたんだり
アイロンがけをしたりと、
洗濯動線をコンパクトにまとめることで、
家事の効率を高めながら、
日々の暮らしをより快適にします。

モノトーンで統一された、高級感あふれる寝室。
グレーやブラックを基調とした
落ち着いた色合いでまとめることで、
上質で洗練された雰囲気を演出しています。
シンプルながらも重厚感のある空間は、
一日の疲れをゆっくりと癒してくれる心地よい
プライベート空間。
静かで落ち着いた雰囲気の中で、
ゆったりとした時間を過ごすことができます。
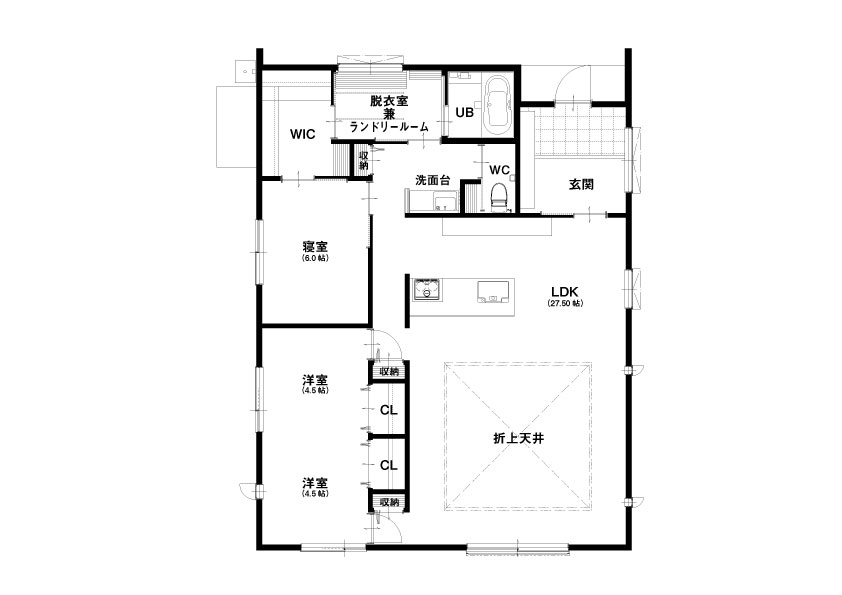
《間取り》

敷地面積:77.91坪 / 延床面積:31.81坪





