01
強固な 「モノコック構造」が 実現する、安全な大空間
「リビングライフ」の圧倒的な開放感を支えているのは、2×4工法による強固な「モノコック構造」です。床・壁・天井の6面が一体となって建物を支えるため、従来の木造軸組工法に比べて柱や壁の制約が少なく、地震の揺れを面全体で分散・吸収します。
2×4工法の恩恵
従来の在来軸組工法では構造上必要だったリビング中央の柱が不要になり、一体感のあるLDKを実現します 。
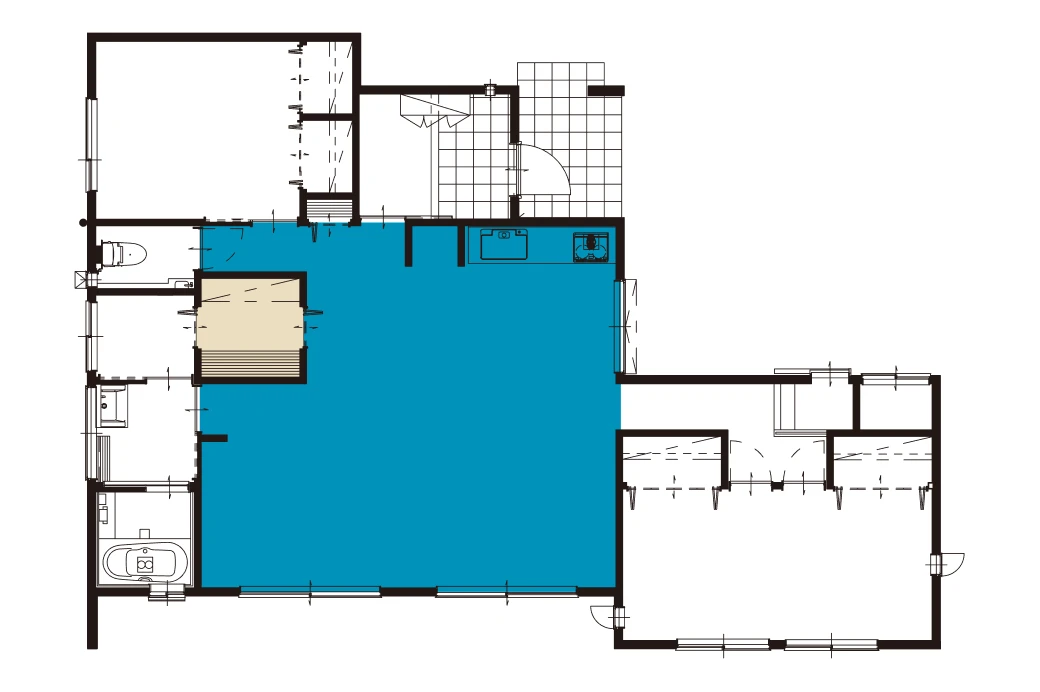
在来軸組工法では構造上の柱が必要
在来軸組工法では、右写真イメージの赤い線が建物の構造を支えるために多くの柱が必要となります。この工法は、柱と梁を組み合わせて建物の骨組みを作るので、この方法では柱が必要になるため、大きな空間を作る際には柱が障害となりがちです。
平面図で見るとこの位置に柱が必要
特に、リビングやダイニングなどの広い空間を確保しようとすると、柱の配置が間取りの自由度を制限し、開放感のあるデザインを実現するのが難しくなります。
2×4工法だからできる空間の広がり
2×4工法により、内部の柱が不要となり、開放的な大空間を実現します。これにより、住宅の間取りにおける自由度が大幅に向上。リビング、ダイニング、キッチンなどが、一つの大きな空間としての利用が可能になり、家族のコミュニケーションを促進するとともに、多様なインテリアの配置が可能に。また、将来のリノベーションも容易になり、長期にわたって住まいの変化に対応できます。





